L(i)ebenswertes Fachwerkidyll – charmantes Zuhause voller Geschichte und Lebensfreude

Objektnummer 2025-14
Objektart Haus
PLZ 38871
Ort Drübeck
Anzahl Zimmer 4
Wohnfläche 134 m²
Grundstücksgröße 364 m²
 
Objektbeschreibung Inmitten eines gewachsenen, ruhigen Wohnumfelds präsentiert sich dieses liebevoll sanierte Fachwerkhaus als echtes Juwel – ideal für eine kleine Familie, die das Besondere sucht. Über drei Wohnetagen hinweg entfaltet sich ein Zuhause, das historische Substanz mit modernem Wohnkomfort vereint. Warmes Holz, durchdachte Details und ein harmonisches Farbkonzept schaffen eine Atmosphäre, in der man sich vom ersten Moment an willkommen fühlt.

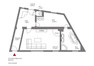
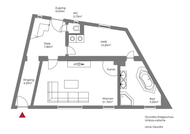
Schon beim Betreten des Hauses wird klar: Hier steckt Herzblut in jeder Ecke. Der Eingangsbereich führt in ein gemütliches Wohnzimmer, das mit einem stilvollen Kaminofen zu behaglichen Stunden einlädt. Die Fenster mit charakteristischen Schiebeläden sind ein charmantes historisches Detail, modern interpretiert und liebevoll in das Gesamtbild integriert. Ein angrenzendes Badezimmer, ein praktischer Hauswirtschaftsraum sowie ein separates Gäste-WC – ideal platziert nahe dem Gartenausgang – unterstreichen die Alltagstauglichkeit dieser Ebene.






Im Obergeschoss bildet der großzügige, offene Koch- und Essbereich das Herzstück des Hauses. Hier spielt sich das Familienleben ab – Kochen, Spielen, Arbeiten, Zusammensein. Die offene Gestaltung sorgt für ein luftiges Raumgefühl und eine lebendige Atmosphäre. Zwei weitere Zimmer auf dieser Etage bieten flexible Nutzungsmöglichkeiten – ob als Kinderzimmer, Arbeitsbereich oder Gästezimmer – und ein praktisches Badezimmer mit Dusche ergänzt das Raumangebot perfekt.

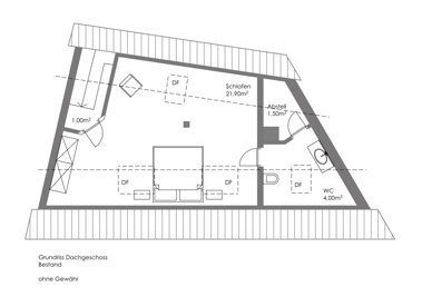
Das Dachgeschoss schließlich ist ein echtes Highlight: Ein traumhaft schöner Schlafbereich mit sichtbarem Fachwerk und großen Dachfenstern, die für reichlich Licht und ein ganz besonderes Raumgefühl sorgen. Eine kleine Ankleide und ein weiteres Sanitärbereich mit Waschbecken und WC machen diese Ebene zum idealen Rückzugsort – ein Elternbereich, wie man ihn sich wünscht: gemütlich, lichtdurchflutet und mit viel Atmosphäre.







Der kleine, aber wunderbar angelegte Garten rundet das Gesamtbild ab – ein Ort zum Durchatmen, zum Entspannen und Genießen. Hier findet sich nicht nur Raum für gemütliche Stunden im Grünen, sondern auch ein weiteres Highlight: ein separates Gartenhäuschen..

Die Immobilie wurde in den letzten Jahren kontinuierlich saniert und befindet sich in einem äußerst gepflegten Zustand. Der gelungene Mix aus traditionellem Fachwerkcharme, moderner Funktionalität und farbenfroher Gestaltung verleiht dem Haus eine ganz eigene, warme Identität. Es ist ein Ort, der Lebensqualität bietet – und das nicht nur im Inneren. Praktischerweise stehen Ihnen zwei Stellplätze und eine große Garage direkt gegenüber zur Verfügung, die von der Gemeinde gepachtet sind – ein weiteres komfortables Detail, das das Gesamtpaket abrundet.

Wer hier einzieht, findet mehr als nur vier Wände – er findet einen Ort zum Ankommen, Leben und Lieben.

.

 
Energieausweis
Wesentlicher Energieträger: Gas

Objektlage Das Fachwerkhaus liegt in Drübeck, einem malerischen Ortsteil der Stadt Ilsenburg. Drübeck ist bekannt für seinen historischen Ortskern, der von liebevoll restaurierten Fachwerkhäusern, gepflegten Gärten und dem berühmten Kloster Drübeck geprägt ist. Dieses Kloster ist ein kulturelles und spirituelles Zentrum der Region und verleiht dem Ort eine besondere Ausstrahlung.

Die ruhige und dennoch gut angebundene Lage des Hauses bietet den perfekten Mix aus Erholung und Aktivität. Direkt vor der Haustür beginnt der Harz – ein Paradies für Naturliebhaber und Outdoor-Fans. Wanderwege, wie der berühmte Harzer Klosterwanderweg, führen durch urwüchsige Wälder und bieten herrliche Ausblicke auf die Harzer Berge. Auch Radfahrer und Mountainbiker finden hier abwechslungsreiche Strecken. Drübeck liegt verkehrsgünstig, sodass die Städte Ilsenburg, Wernigerode und Goslar schnell erreichbar sind. Hier finden sich Einkaufsmöglichkeiten, Schulen, Kindergärten und medizinische Versorgung. Gleichzeitig bietet die unmittelbare Umgebung ein Gefühl von Abgeschiedenheit und Ruhe.




Besonders attraktiv ist die Nähe zum Nationalpark Harz – einem der größten Waldnationalparks Deutschlands. Ob ausgedehnte Spaziergänge, Wintersport oder kulturelle Entdeckungen – hier finden Sie unzählige Möglichkeiten zur Freizeitgestaltung.

Ihre Vorteile in der Lage:

- Ruhige und familienfreundliche Wohnstraße in Drübeck
- Historischer Ortskern mit dem bekannten Kloster Drübeck
- Zahlreiche Wander- und Radwege direkt vor der Haustür
- Schnelle Anbindung an Ilsenburg, Wernigerode und Goslar
- Freizeitmöglichkeiten im Nationalpark Harz
- Erholung und Naturerlebnis pur

Dieses Fachwerkhaus verbindet den Zauber eines traditionsreichen Ortes mit der Schönheit und Vielfalt der Harzlandschaft – ein Ort, an dem sich das Leben genießen lässt.
Sonstige Angaben Unter folgendem Link haben Sie die Möglichkeit, diese Immobilie in einem 360°-Rundgang virtuell zu begehen. Wir wünschen Ihnen viel Spaß dabei und hoffen, mit diesem Objekt Ihr Interesse geweckt zu haben.

https://tour.ogulo.com/DchU