Gepflegtes Einfamilienhaus in ruhiger und sonniger Lage

Objektnummer ID 2012 - 02
Objektart Haus
PLZ 38855
Ort Wernigerode
Anzahl Zimmer 4
Wohnfläche 121 m²
Grundstücksgröße 500 m²
 
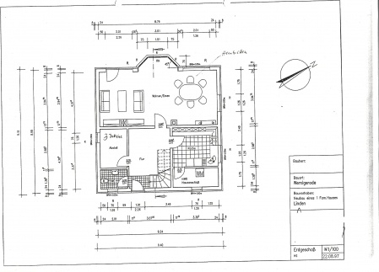
Objektbeschreibung Das 1998 massiv erbaute Einfamilienhaus verfügt über 4 Zimmer auf insgesamt 121 m² Wohnfläche und zusätzlichem Dachboden. Im Erdgeschoss befindet sich die Küche, das geräumige Wohn- und Esszimmer mit Kamin, das Gäste-WC und zwei praktische Hauswirtschaftsräume.
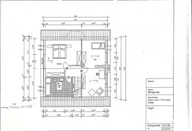
Über eine offene Holztreppe gelangen Sie in das obere Geschoss des Hauses. Diese Etage bietet Ihnen ein helles, geräumiges Schlafzimmer und zwei weitere Zimmer.
Die große Terrasse ist zur Westseite ausgerichtet. Für die Fahrzeuge steht Ihnen ein Doppel-Carport mit direktem Zugang zum Haus zur Verfügung.
Objektlage Dieses schöne Einfamilienhaus befindet sich in zweiter Reihe auf der sonnigen Seite des Mühlentals - eine begehrte Wohnlage in Wernigerode.
Nöschenrode ist ein beliebter Ortsteil zum Wohnen und bietet eine gute Infrastruktur. Der Wildpark Christianental, der Aldi-Einkaufsmarkt, der Wernigeröder Tennisplatz, die Tennishalle und die City-Bushaltestelle sowie der Reiterhof im Friederikental sind ganz in der Nähe und fußläufig zu erreichen.
Die etwa 2,5 km entfernte Innenstadt von Wernigerode ist reich verziert mit sehr schönen sanierten Fachwerkhäusern. Die mittelalterliche Altstadt mit seinem prachtvollen Rathaus und das neugotische Schloss, das hoch über der Stadt thront und ein Museum beherbergt, ziehen jährlich viele Besucher an.
Sonstige Angaben Das Einfamilienhaus ist zur Zeit vermietet. Das Mietverhältnis kann bei begründetem Eigenbedarf gekündigt werden und SIe können diese Immobilie selbst nutzen.


Für eine Besichtigung dieser attraktiven Immobilien stehen wir Ihnen gerne zur Verfügung.